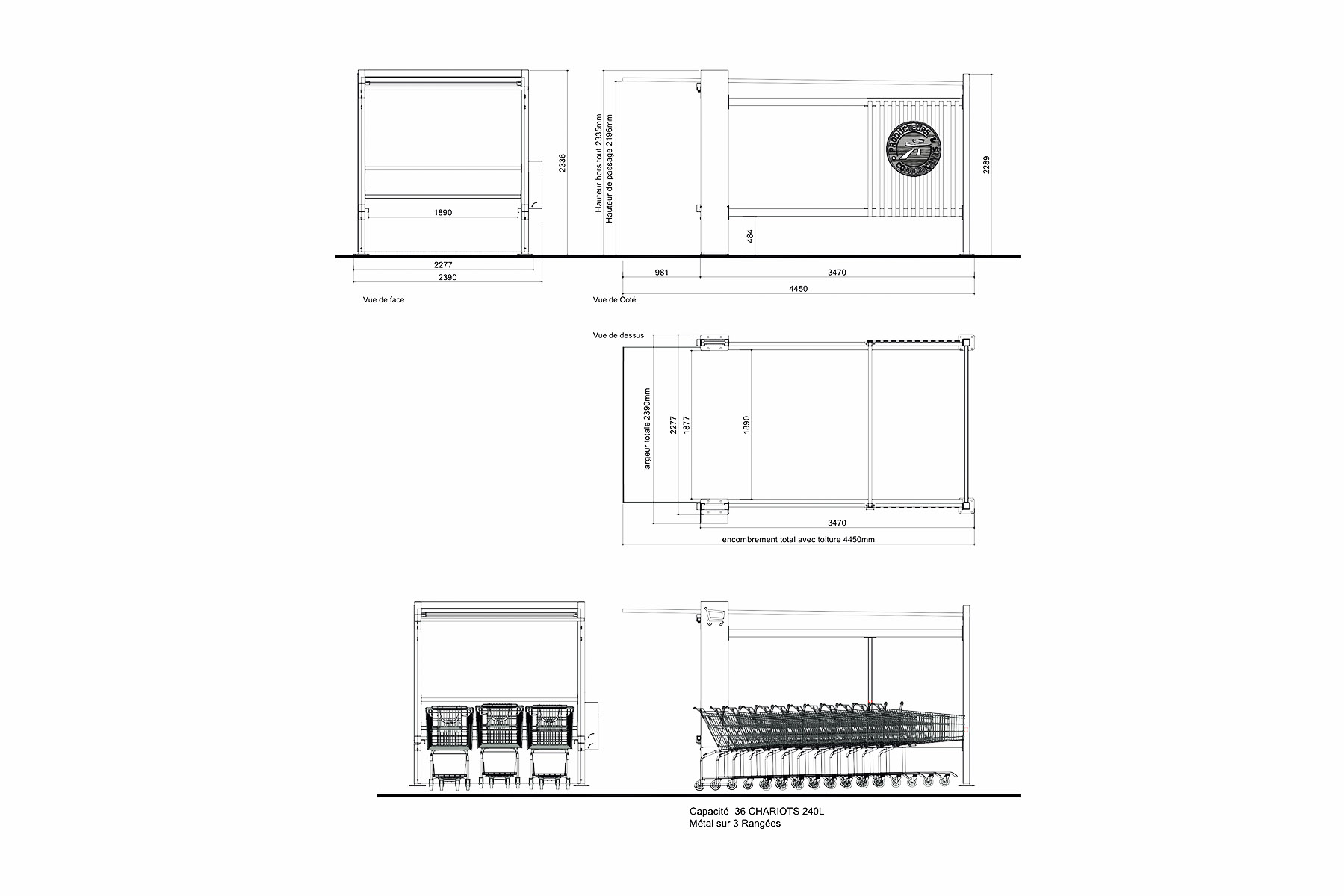
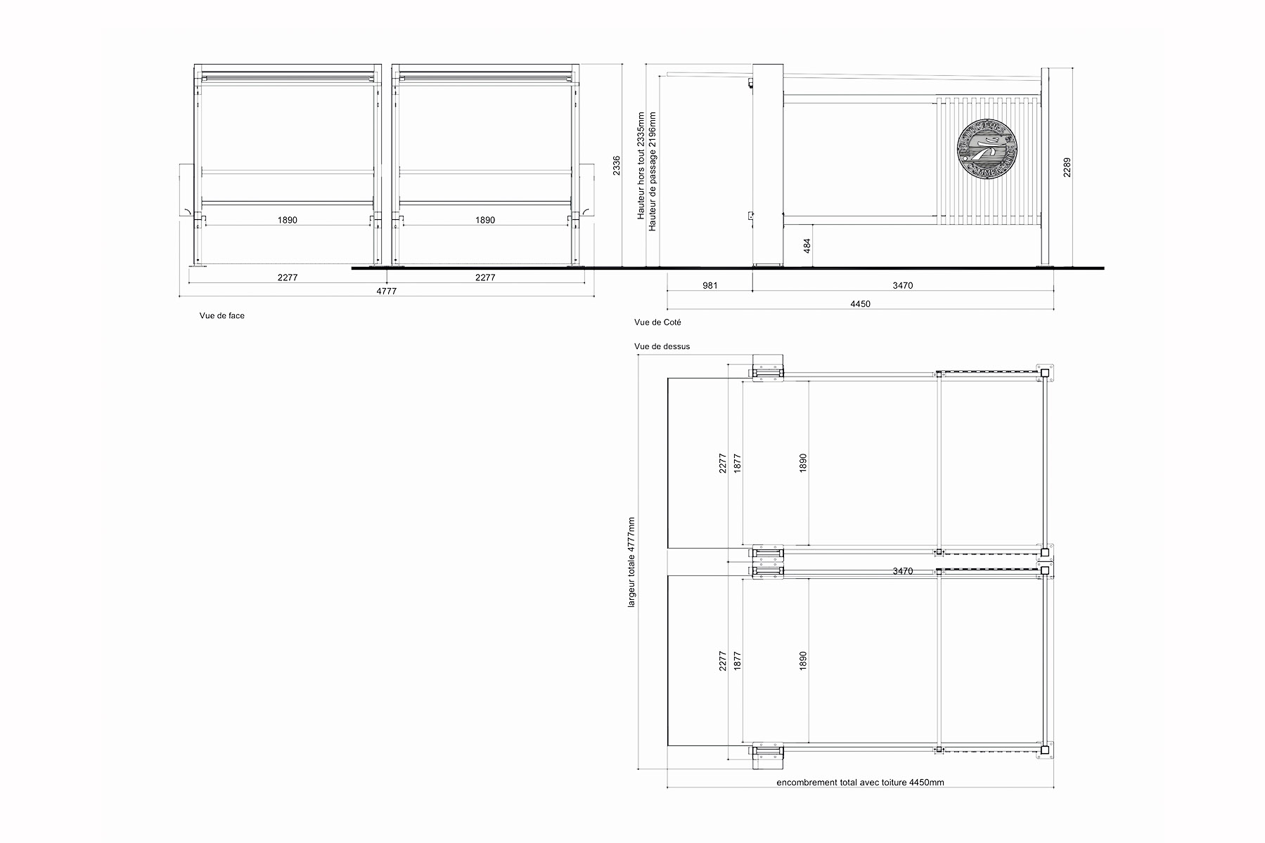
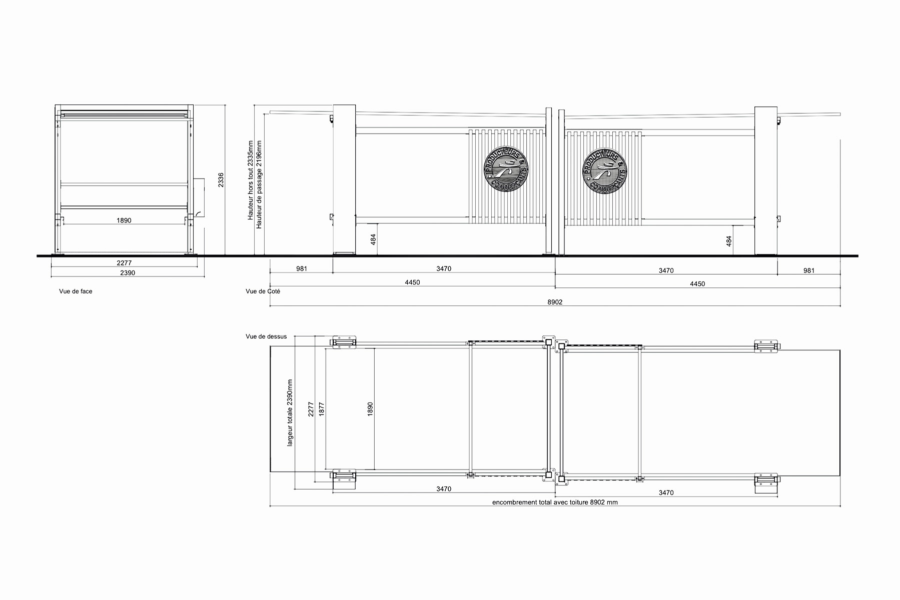
La technique
Objective
La qualité d’un Abri Charriot est déterminée dès sa conception. C’est pourquoi, notre bureau d’étude concrétise vos projets grâce à une approche
professionnelle (ingénierie du bâtiment, pré-étude, calcul de faisabilité, mise
en situation…)
• La fabrication est gérée par un équipement entièrement robotisé.
• Table de découpe adhésif grand format.
• Machine de fraisage numérique pouvant s’adapter à tous type de matériaux (Altuglas, PVC, Bois, Aluminium, Laiton, etc). Pliage numérique.
• Câblage
• Machine de découpe LASER tôes et tubes
01
Design approche
Finition
Nous apportons un soin très particulier à la finition de nos Mobiliers : la préparation des surfaces et le revêtement peinture, Poluyréthane ou Epoxy, Chaine de Poudrage automatique, four de cuisson, atelier de métallerie, soudure semi-automatique pour la construction métallique, Pliage 8 Axes.
Installation
L’assurance d’un service complet.
Nous assurons l’installation de nos Abris Charriots sur le territoire français. Camions grue, plateaux et fourgons atelier, nous permettent le transport et des interventions les plus délicates


